세척기기류
취사기
냉장고
열조리기구
회전식국솥
스팀컨벡션오븐
작업대/세정대
병원용 배식차
식가공기기
자율배식대
살균건조기
음식물처리기
전기/전열제품
음수대/정수기
배기후드
트랜지/그리스트랩


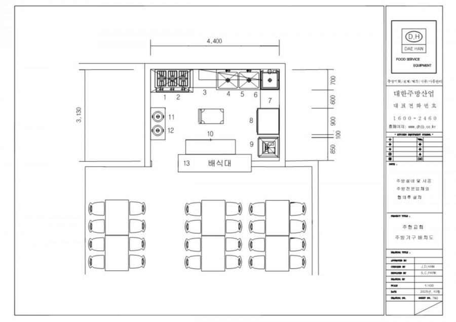
2025년 10월 서울 주현교회 식당 주방기구설치 및 설비공사,전기공사,닥트공사,도시가스공사 완료

페이지 정보

댓글 0건 조회 174회 작성일 2025-11-07 18:13

본문

2025년 10월 서울 주현교회 식당 주방기구설치 및 설비공사,전기공사,닥트공사,도시가스공사 완료

댓글목록

등록된 댓글이 없습니다.

Total 250건 1 페이지
게시물 검색
주방시설보수공사
트랜치공사
수도설비공사
전기공사
주방타일작업
주방기구제작
주방기구설치
닥트공사
도시가스공사
본사: (04585) 서울시 중구 다산로42가길 30 (신당동 52-269) | 전시장: (14742) 경기도 부천시 송내대로27번길 19-12 (송내동 704-6)
상호: (주)대한주방산업 | 대표: 한재덕 | 문의전화. 1600-2460 | Fax: 032-613-6308 | 이메일: dhjb6204@naver.com | ADMIN
Copyright 2002~2026 (주)대한주방산업 All rights reserved | 사업자번호 130-32-16594 | 통신판매신고 부천제2006-1092호